






OUR CORE SERVICES
Planning Applications and Certificates
Planning Appeals
Topic Based Assessments including Housing Land Supply
other SERVICES
about us
Evolve Planning is a clear-sighted consultancy that seeks to offer professional and honest advice with a friendly and personable approach.
We advise on all aspects of urban and rural planning, including strategic land promotion and rural diversification, supporting the submission and project management of a wide range of planning applications across the country, as well as providing evidence for appeals.
Driven to achieve successful outcomes by assisting in the delivery of proposals that work for clients, developers and the environment, we’re passionate to see increasingly sustainable urban and rural environments created through the delivery of high quality development that address the challenges of today.
The consultancy company has formed strong links with Local Planning Authorities, architects, and technical consultants and can bring together a land project team for proposals to then take through the planning process.
Our team of consultants has over 30 years of experience in Staffordshire and further afield, providing town planning advice to developers, the landowners, promoters and individuals on a wide range of proposals.
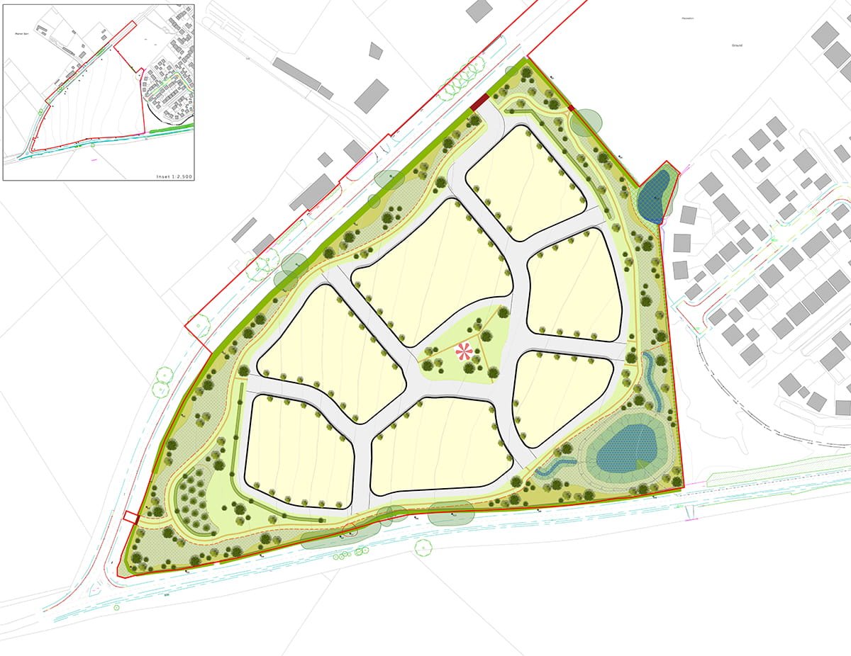
OUR PROJECTS
- All
- Residential
- Care
- Rural
- Commercial
contact us
Please feel free to get in touch to discuss any projects we may be able to assist with:
- +44 (0)1889 504136
- info@evolvepad.co.uk
-
Unit 1, Tollgate Business Centre,
Blithbury Road, Hamstall Ridware,
Rugeley, United Kingdom, WS15 3RT
We aim to reply within 24 hours.








